П-47 серия и проект дома, планировки квартир, характеристики, фото и описание

Характеристики

Годы строительства: 1975-1990

Вентиляция: Естественная вытяжная через вентиляционные блоки в санузлах

Производитель: МПСМ (Моспромстройматериалы)

Количество квартир на этаже: 4

Мусороудаление: Мусоропровод на этаже

Количество секций (подъездов):: от 2

Лифты: Два пассажирский грузоподъемностью 400 кг

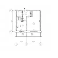
Количество комнат в квартирах: 1, 2

Количество этажей: 12-14

Тип дома: Панельный

Высота жилых помещений: 2.64

Описание

  • Технические помещения: техподполье и чердак для размещения инженерных коммуникаций
  • Лоджии: верхние лоджии имеют козырьки
  • Ванны: 170 см
  • Санузлы: раздельный
  • Наружные стены: керамзитобетонные панели толщиной 340 мм
  • Внутренние стены: железобетонные толщиной 140 и 180 мм
  • Перегородки: 80 мм
  • Перекрытия: железобетонные толщиной 140 мм
Корпуса в Зеленограде 1121, 1126, 1129, 1131, 1132, 1133 сочетают серии П-30 и П-47, корпус 1432 сочетает серии П-55 и П-47.

Планировка квартир в домах серии П-47

Фото домов серии: П-47