В поиск

Продажа, 1 к. квартира, Зеленоград, Заводская, д. 14, к. 2

Описание

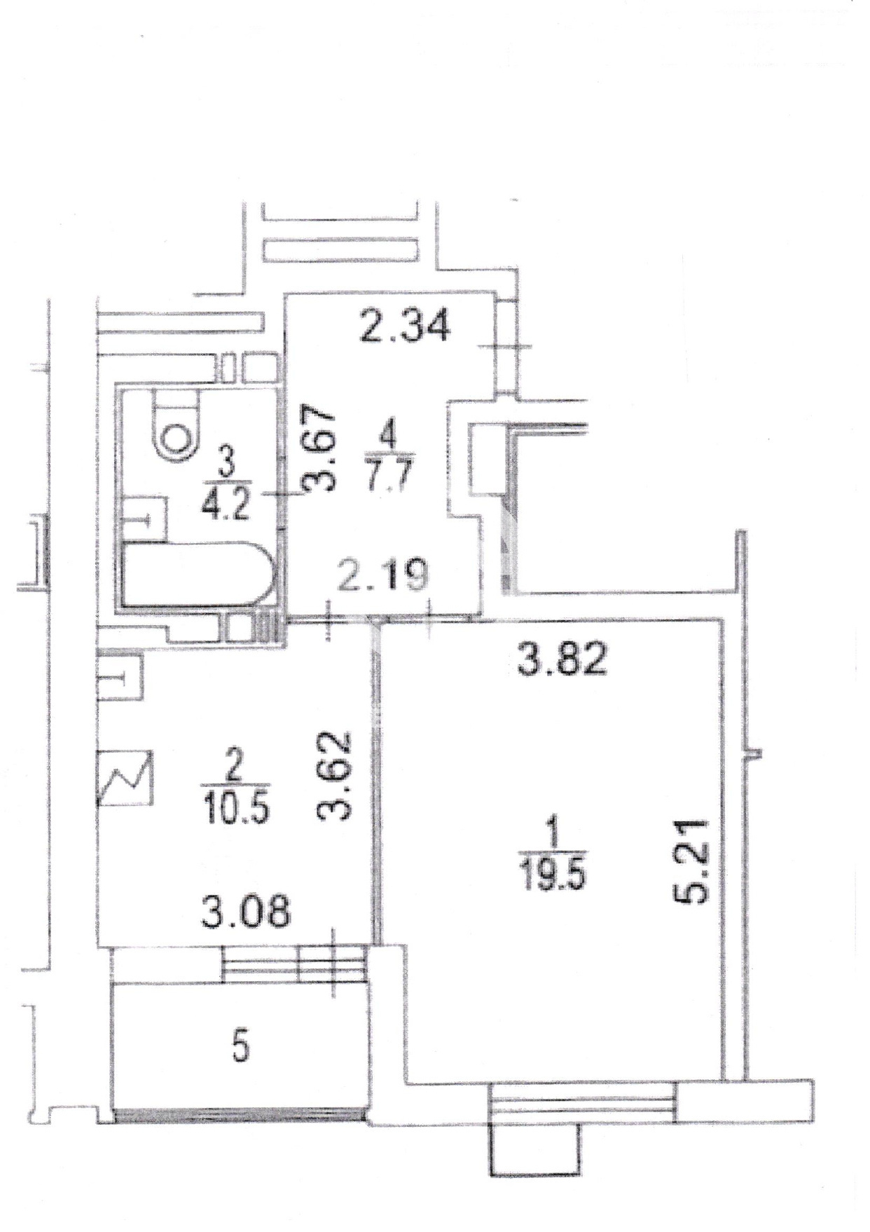
№52446. От Гильдии риелторов Москвы предлагается к продаже просторная 1 к. квартира в г. Зеленограде, Заводская 14 корп. 2 (Крюково-Москва, МЦД-3). Хорошая инфраструктура, транспортная доступность. До МЦД-3 “Крюково” (35 минут до Москвы) всего 8 минут спокойным шагом. Рядом есть все необходимое: торговые центры, магазины, банки, автобусные остановки, круглосуточные аптеки, кафе. Поликлиники, школы, детские сады — в пределах 10-15 минутной доступности от дома. В шаговой доступности пункты выдачи (Ozon,Wldberries). Открыли новый магазин "Пятерочка" в 5 минутах ходьбы от дома. Без учета лоджии площадь 42 кв м. Уникальная планировка: просторная прихожая, кухня квадратной формы 11 кв. м, окна квартиры выходят на юг. Дом расположен на второй линии от ж/д дороги. На площадке 3 квартиры, не торцевая. Балкон в кухне застеклен (москитные сетки). В санузле 2 линии освещения: верхняя и подсветка зеркала, электрический полотенцесушитель с таймером отключения и функцией памяти. Пол: прихожая и кухня - плитка, комната - ламинат. Альтернатива на 2 к. кв. в Зеленограде.

Об объекте

  • Общая площадь 44 м2
  • Площадь кухни 11 м2
  • Этаж 2/22
  • Пл. дома 44 кв.м
№52446
11 300 000 ₽
256 818 ₽/м2
возможен обмен на:
2 к. кв. Зеленоград
  • Общая площадь 44 м2
  • Площадь кухни 11 м2
  • Этаж 2/22
  • Пл. дома 44 кв.м
Позвонить В избранное Предложить свою цену