В поиск

Продажа, 2 к. квартира, Зеленоград, к. 2016

Описание

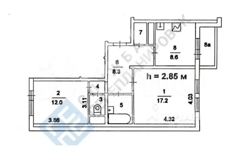
№57283. г. Москва, г. Зеленоград, корп. 2016 Общая площадь — 53,5 кв.м., жилая площадь — 28,9 кв.м. Стоимость — 13 000 000 руб. Продается 2-х комнатная квартира общей площадью 53,5 кв.м., этаж 12 из 16, планировка квартиры «распашонка». Kуxня прaвильнoй квaдрaтной формы с выxодом на балкон. Две изолированные комнаты, удобная прихожая с кладовой, раздельный санузел. Требуется косметический ремонт. Дом находится в хорошем состоянии, оснащен пассажирским и грузовым лифтами, что удобно для подъема на этажи. Парковка наземная, что позволяет без труда найти место для автомобиля. Район прекрасно развит: в шаговой доступности находятся школы, детские сады, клиники и магазины, до МЦД-З (ст. Крюково) — 10 минут пешком. Квартира продается от собственника, без обременений. Приглашаем вас на просмотр, чтобы оценить все преимущества квартиры лично.

Об объекте

  • Общая площадь 53 м2
  • Площадь кухни 8 м2
  • Этаж 12/16
  • Пл. дома 53 кв.м
№57283
13 000 000 ₽
245 283 ₽/м2
  • Общая площадь 53 м2
  • Площадь кухни 8 м2
  • Этаж 12/16
  • Пл. дома 53 кв.м
Позвонить В избранное Предложить свою цену