В поиск

Продажа, 3 к. квартира, Зеленоград, к. 2307Б

Описание

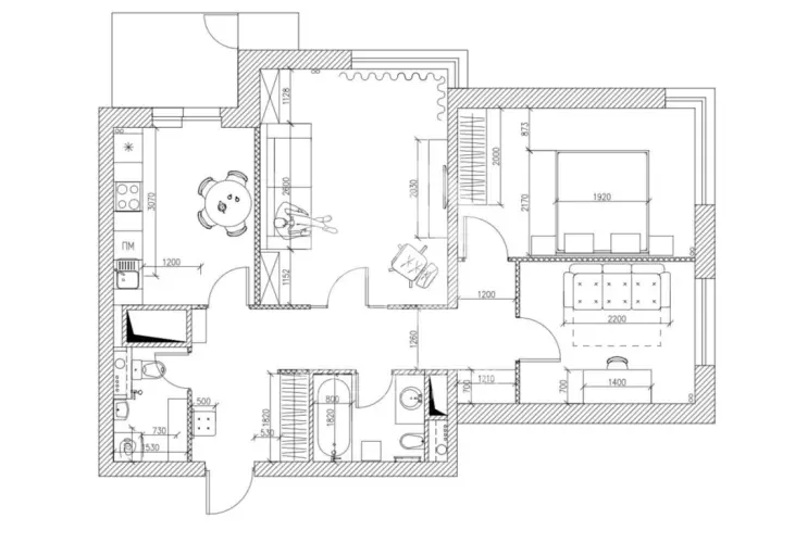
№55110. Гильдия риэлторов Москвы, предлагает к продаже 3-комнатную квартиру по адресу г. Зеленоград, к. 2307Б, ЖК Зеленый Бор. 2 собственника. Свободная продажа, никто не прописан и не проживает. Квартира расположена на 13 этаже, 17-ти этажного монолитного дома, 2014 года постройки. Трехкомнатная квартира, 78м2. Полностью отремонтирована и мебелирована с большим вкусом, по дизайн-проекту. Комнаты – гостиная, спальня, кабинет/детская, отдельная кухня с панорамным балконом, ванная комната и второй санузел-постирочная с продуманной системой хранения. В коридоре дополнительное место хранения – встроенный глубокий шкаф. Оснащение. Все окна панорманые, с видом на лес. Низкие радиаторы, в квартире электрический теплый пол. Паркетная доска в комнатах, двери массив дуба. Стиральная, посудомоечная машина, встроенный холодильник, фильтр обратный осмос, интернет от Ростелеком с раздачей интернета роутером. Проложена трасса под кондиционер. Квартира продается полностью с мебелью, шторами, аксессуарами, всё как на фото. Инфраструктура. Подъезд с консьержем, закрытый район без автомобилей. Лучшая школа и сад в городе в 3х минутах ходьбы. ТЦ со всеми необходимыми магазинами. Озеро и прогулочная зона. Новый бассейн «Горизонт» и фитнес в пешей доступности. Ипотека приветствуется, торг реальным покупателям. Оперативный показ.

Об объекте

  • Общая площадь 77 м2
  • Площадь кухни 10 м2
  • Этаж 13/17
  • Пл. дома 77 кв.м

Похожие объекты

№55110
28 000 000 ₽
363 636 ₽/м2
  • Общая площадь 77 м2
  • Площадь кухни 10 м2
  • Этаж 13/17
  • Пл. дома 77 кв.м
Позвонить В избранное Предложить свою цену