В поиск

Продажа, 4 к. квартира, Зеленоград, к. 1824

Описание

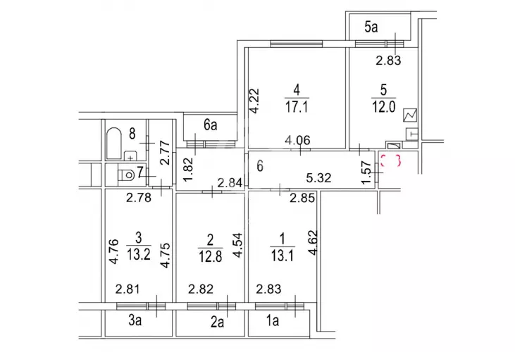
№53507. АВАНС до 18 июня! четырехкомнатная квартира в Зеленограде, в корпусе 1824 в пешей доступности МЦД Зеленоград. Общая площадь квартиры составляет 95,4 кв.м., без учета лоджий: 88,2 кв.м, из которых 56.2 (17.1; 13.2; 12,8; 13,1) кв.м — жилая площадь, кухня занимает 12 кв.м. Квартира расположена на 4 удобном этаже, с которого открывается прекрасный вид из окон на улицу и во двор. Высота потолков — 2.64 метра. В квартире 5 застекленных лоджий. Дом панельный, построен в 1996 году. В квартире требуется ремонт. Это идеальный вариант, чтобы сделать свой собственный эксклюзивный ремонт! Планировка квартиры очень удачная, окна выходят на разные стороны (распашонка), включает четыре изолированные комнаты, просторную кухню с большой застекленной лоджией, дополнительную большую застекленную лоджию в коридоре (можно утеплить и использовать как дополнительную комнату). Три комнаты с застекленными лоджиями смотрят на тихий и красивый зеленый двор. Санузел раздельный, что идеально подходит для большой дружной семьи. Дом оборудован пассажирским и грузовым лифтами, что делает удобным доставку крупногабаритных покупок. Наземная парковка обеспечивает место для вашего автомобиля. В доме есть пандус и мусоропровод, поэтому можно не беспокоиться о бытовых мелочах. Дом прекрасно расположен, рядом развитая инфраструктура: рядом находятся школы, детский сад во дворе, спортивные площадки, уличные тренажеры, детские игровые комплексы, торговые центры, столовая. Во дворе много хвойных деревьев, кустарников и других насаждений. В самом доме расположены сетевые магазины Пятерочка, Вкусвилл, кафе, аптеки, салоны мебели и плитки, парикмахерские, что делает повседневную жизнь комфортной. До станции метро "Зеленоград — Крюково" можно дойти пешком за 5 минут, что удобно для ежедневных поездок на работу или учебу. Квартира продается без обременений и долгов. Возможна продажа в ипотеку. Все документы готовы к сделке, что позволяет быстро оформить покупку. Один взрослый собственник, в собственности с 1997 года (квартира получена по ордеру и ранее не продавалась, абсолютно чистая юридически). Приглашаем вас на просмотр, чтобы оценить все преимущества этой квартиры. Звоните и записывайтесь на удобное для вас время!

Об объекте

  • Общая площадь 88 м2
  • Площадь кухни 12 м2
  • Этаж 4/14
  • Пл. дома 88 кв.м
№53507
17 600 000 ₽
200 000 ₽/м2
  • Общая площадь 88 м2
  • Площадь кухни 12 м2
  • Этаж 4/14
  • Пл. дома 88 кв.м
Позвонить В избранное Предложить свою цену