В поиск

Продажа, 4 к. квартира, Зеленоград, к. 829

Описание

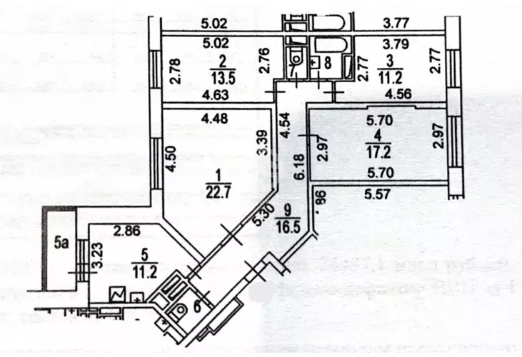
№53729. Предлагается к продаже 4-комнатная квартира на 6 этаже монолитного дома в Зеленограде. Дом разной этажности 2017 года постройки. Квартира большая, просторная 97,9 кв.м., не включая большой балкон из кухни с панорамным остеклением. С интересной, нестандартной планировкой. Высота потолков 2,7 м. Комнаты 22,7, 17,2, 13,5, 11,2 кв.м. все раздельные, окна выходят на две стороны, квартира распашонка, с обеих сторон двор. Прихожая 16,5 кв.м. Санузел раздельный + гостевой санузел. На отопление стоят теплосчётчики, которые выключены, потому что квартира очень тёплая. Хороший бонус при оплате коммунальных платежей! На этаже 3 квартиры, большой тамбур. До станции МЦД Крюково Зеленоград 3 минуты пешком. 30 минут на ласточке и вы в центре Москвы. В подарок новому собственнику дизайнерский проект квартиры. В собственности более 5 лет. Основание - договор купли-продажи. Есть несовершеннолетние. Альтернатива подобрана. Оперативно выйдем на сделку. Реальному покупателю торг.

Об объекте

  • Общая площадь 97 м2
  • Площадь кухни 11 м2
  • Этаж 8/11
  • Пл. дома 97 кв.м
№53729
24 950 000 ₽
257 216 ₽/м2
возможен обмен на:
3 кв
  • Общая площадь 97 м2
  • Площадь кухни 11 м2
  • Этаж 8/11
  • Пл. дома 97 кв.м
Позвонить В избранное Предложить свою цену