В поиск

Продажа, дом, Бакеево, 196 кв.м, 5,2 сот

Описание

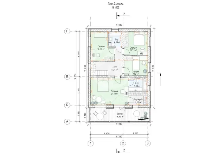
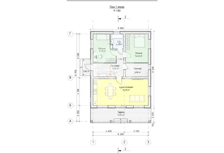
№58655. Продается дом совремнной, функциональной планировки, со всем необходимым. Дом : 1й этаж столовая -гостиная (кухня со встроенной бытовой техникой (немецкой), с механизмами Блум, что является очень функциональным в кухне, а так же выдвижные и т д механизмы) две спальни (одна как гостевая, вторая временно используется под детскую, но планировалось под игровую), сан. узел и бойлерная, терраса (панорамные окна во двор), отопление теплый пол. 2й этаж: 3 детские спальни и детский сан. узел, а так же большая мастер спальня 51 м2, со своим сан узлом, гардеробной, спальней в 21 м2 и зоной отдыха 18,5 м2 с панорамным остеклением с видом на лес . Второй этаж весь в отделке вайт бокс, готов к чистовой отделке, оштукатурен, ошпатлеван в 2 слоя и зашкурен, загрунтован, на полу ровная стяжка. Так же в сан. узлах итальянские инсталляции, не нужно ждать высыхания и т д, Можно сразу делать чистовой ремонт. Вся инженерия разведена (отопление-теплый пол, электрика, вода, канализация, вентиляция). Инженерия выполнена из качественных материалов -пол труба stout (оригинал), провода Конкорд. На улице почти достроен каминный зал (есть возможность переделать в зону барбекю), и бассейн (бетон+все продуманно для установки подогревательных элементов). Въезд -большая бетонная площадка под 3-4 машины. Участок выровнен и посеян газон. На территории в достаточном количестве посажены декоративные растения (Туя, можжевельники, самшит, гортензии, сирень, пузыреплодник и т.д.) В поселке асфальт, лежачие полицейские, видеонаблюдение , охрана . Удобный ,прямой выезд из поселка, 200м до Пятницкого шоссе, автобусная остановка в 5 минутах, до МЦД Крюково 15 минут. Рядом магазин Пятерочка ,ПВЗ, аптека. Свободная продажа, без долгов и обременений.

Об объекте

  • Пл. участка 5,2 сот
  • Пл. дома 196 кв.м
№58655
27 990 000 ₽
142 806 ₽/м2
  • Пл. участка 5,2 сот
  • Пл. дома 196 кв.м
Позвонить В избранное Предложить свою цену