В поиск

Продажа, дом, Отрада, 114 кв.м, 6 сот

Описание

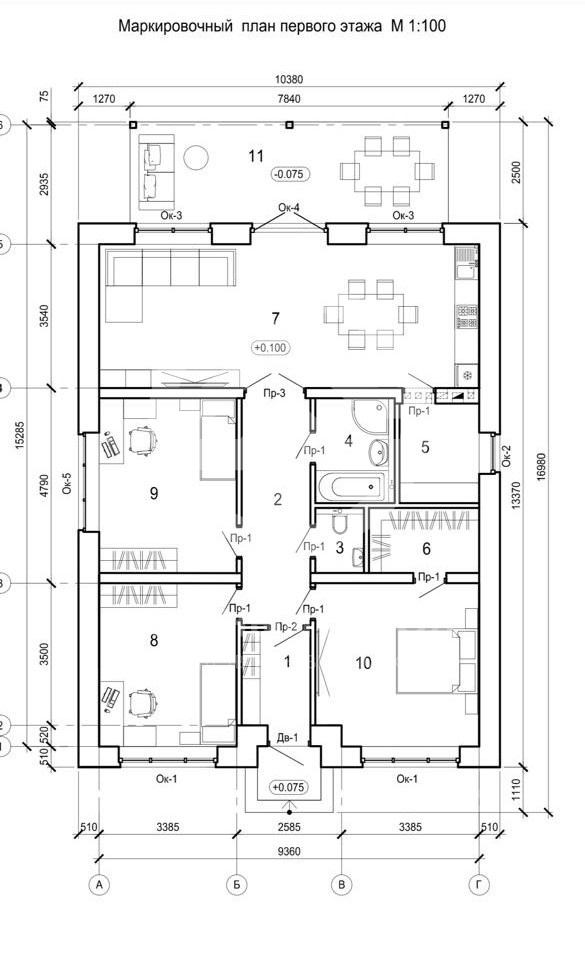
№52442. Срочно продаем дом по семейной ипотеке под 6 % годовых, платеж в месяц по ипотеке Сбера -50000 рублей, в доме выполнена предчистовая отделка, осталось сделать финишную отделку(стоимость отделки под ключ - 2 млн.рублей, отделка по вашим предпочтениям), покрасить или поклеить обои, подвести свет,канализация установлена-септик Тверь ( на 8 человек), вода - централизованный водопровод от общей скважины. Дом находится в городском округе Клин, в коттеджном поселке "Отрада", вблизи деревни Отрада, Живописный коттеджной поселок, вокруг красивый лес, проведены работы по устройству собственного озера для досуга жителей данного поселка. Установлена большая детская площадка, в планах строительство детского сада, магазина, кафе, спортклуба и т.д. Дом с видом на пруд. Просторная гостиная, совмещённая c кухней, выход на террасу,, три уютных спальни, просторная прихожая, два санузла-в этом проекте удалось сочетать одновременно простор и уют, современную и удобную планировку. Дом выполнен из газосиликатных блоков, снаружи штукатурка Корроед, кровля металлочерепица, двухкамерные энергосберегающие стеклопакеты. Утепление - потолок 200 мм; Монолитная фундаментная плита толщиной 300 мм, с двойным армированием, утеплением Участок выровнен, площадью 6 соток, правильной геометрической формы, выполнена планировка участка, посеян газон, огорожен с 3-х сторон, вкручены сваи для монтажа забора по фасаду и откатных ворот,имеется парковочное место на 2 машины, посажены туи. КН земли 50:03:0050380:10730

Об объекте

  • Пл. участка 6 сот
  • Пл. дома 114 кв.м
№52442
9 150 000 ₽
80 263 ₽/м2
  • Пл. участка 6 сот
  • Пл. дома 114 кв.м
Позвонить В избранное Предложить свою цену