В поиск

Продажа, дом, Отрада, 142 кв.м, 6 сот

Описание

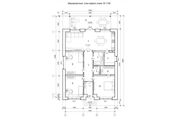
№51068. Продается жилой дом в коттеджном поселке "Династия, вблизи деревни Отрада. 50 мин (77 км) от МКАД по Новой Риге, скоростная трасса М11, Ленинградское шоссе. Посёлок находится на границе Клинского и Солнечногорского районов Московской области, в 10 км (8 минут) от Истринского водохранилища, в 15 км (15 минут) от центра старинного и уютного города Клин. Материал дома - газосиликатные блоки, фундамент - свайно-ростверковый, сверху железобетонная плита. год постройки- 2024 Планировка дома: просторная кухня-гостиная с панорамными окнами(34 кв.м) и с выходом на уютную террасу для отдыха на свежем воздухе, три большие и комфортные спальные комнаты, где в одной из них имеется просторная гардеробная, раздельный санузел, большой холл, прихожая, бойлерная. Высота потолков - 3 метра. Коммуникации: Электричество-15 кВт, отопление- водяные теплые полы,электрокотел, вода - централизованный водопровод( артезианские скважины в поселке), канализация - автономный септик Малахит, WI-FI, оптоволокно. Снаружи дом оштукатурен ( штукатурка корроед), облицован красивой декоративной плиткой, подведено освещение, фасад дома красив и современен, особенно интересен в темное время суток. Полностью выполнена отделка дома, в комнатах декоративная штукатурка в приятных пастельных оттенках "Мокрый шелк". в гостиной и на кухне на стенах декоративная штукатурка "Марракеш", санузел раздельный :душевая кабина и ванная, туалет, полы- плитка везде, теплые полы с отдельной регулировкой каждого помещения. КП "Династия"- поселок бизнес-класса с различными кварталами в едином архитектурном стиле. Расположен в экологически чистом месте Подмосковья. Окружен лесным массивом и двумя озерами. На территории коттеджного поселка предусмотрена развитая инфраструктура с детским клубом, магазином, спортзалом и кафе. Уютные пляжи, открытые спортивные площадки, а так же благоустроенные пешеходные дорожки вдоль лесного массива - все, что нужно для комфортной спокойной жизни. Звоните, все подробно расскажем и поможем с одобрением кредита. Покажем в удобное для вас время. Кадастровый номер участка 50:03:0050380:10713

Об объекте

  • Пл. участка 6 сот
  • Пл. дома 142 кв.м
№51068
10 500 000 ₽
73 944 ₽/м2
  • Пл. участка 6 сот
  • Пл. дома 142 кв.м
Позвонить В избранное Предложить свою цену