В поиск

Продажа, дом, Соколово, 185 кв.м, 13 сот

Описание

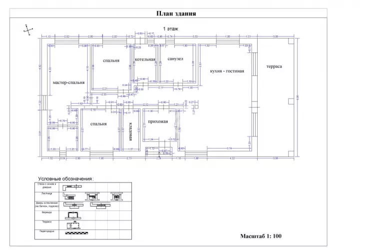
№50718. Продается просторный ЖИЛОЙ ДОМ 185,7 кв.м. на земельном участке, площадью 13 соток в охраняемом КП Тихие Зори (д. Соколово) городской округ Солнечногорск, Московская область, участок 248/1, расположен в непосредственной близости к с лесному массиву Количество этажей 1 Планировка: Кухня-гостиная 43,2 кв.м, мастер-спальня с отдельным санузлом 24 м.кв., две детские 13,4 кв.м + 15,8 кв.м, большой санузел с постирочной зоной, котельная, гардеробная, второй санузел с постирочной зоной 8 кв.м. Год завершения строительства 2023 Фундамент - монолитная плита Материалы стен - газоблок 600×250×300, Пеноблок утеплен, облицован кирпичем. Облицовка фасада — керамический кирпич Braer (кора дуба). Крыша: металлочерепица (крыша и потолки утеплены дополнительно) Окна: пластиковые Rehau Delight, фурнитура Roto NX, ламинация графит снаружи и внутри дома. Двери центрального входа и бойлерной металлические с терморазрывом. Отделка: в доме выполнена полная разводка всех коммуникаций, смонтирована и работает система отопления теплый пол по всему первому этажу и санузлам, стены оштукатурены, залита стяжка, Коммуникации: Газ - по границе участка (подключение 350 000 руб.) Электричество -15 квт Вода — центральная Канализация - центральная Участок: ровный, сухой, на участке так же отдельно залит капитальный монолитный фундамент 8 на 6,5 под баню и зону барбекю. Поселок: Поселок охраняемый. КПП, видеонаблюдение. Вся инфраструктура в шаговой доступности. Магазины, аптека, детский сад, школа, поликлиника, ТЦ, досуговые места. Недалеко от вас Истринское водохранилище.

Об объекте

  • Пл. участка 13 сот
  • Пл. дома 185 кв.м
№50718
14 150 000 ₽
76 486 ₽/м2
  • Пл. участка 13 сот
  • Пл. дома 185 кв.м
Позвонить В избранное Предложить свою цену