Московская обл., Солнечногорский р-н, д. Голубое, ЖК "Мелодия леса", дом 5 — информация о доме, фото, характеристики и планировки квартир

Характеристики

  • Серия ЖК «Мелодия леса»
  • Номер дома 5
  • Год постройки 2016
  • Тип кухонной плиты электрическая
  • Мусороудаление Мусоропровод на этаже
  • Количество секций (подъездов): 1
  • Лифты Пассажирский 400 кг и грузопассажирский 630 кг
  • Количество комнат в квартирах 1, 2, 3
  • Количество этажей 12
  • Тип дома Монолитно-кирпичный
  • Высота жилых помещений 2.80
Информация по серии: ЖК «Мелодия леса»

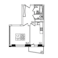
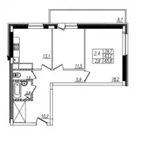
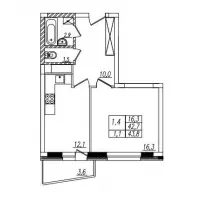
Планировка квартир в домах серии ЖК «Мелодия леса»

Другие дома

Другие дома в этом районе
Дома: 12345678
Другие дома этой серии
Дома: 1234678
Остались вопросы?

Звоните по телефону: +7 499 490-47-01

Пишите на электронную почту: mail@zelgorod.ru

Смотрите наши услуги

Поиск объектов недвижимости