Московская область, г. Солнечногорск, ул. Банковская дом 6 — информация о доме, фото, характеристики и планировки квартир

Характеристики

  • Серия 114-87
  • Номер дома 6
  • Год постройки 1988
  • Тип кухонной плиты газовая
  • Мусороудаление Мусоропровод на межэтажной лестничной площадке
  • Количество секций (подъездов): 5
  • Лифты Один пассажирский грузоподъемностью 400 кг
  • Количество комнат в квартирах 1, 2, 3, 4
  • Количество этажей 9
  • Тип дома Кирпичный
  • Высота жилых помещений 2.50
Информация по серии: 114-87

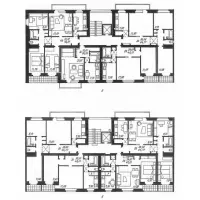
Планировка квартир в домах серии 114-87

Другие дома

Другие дома в этом районе
Дома: 624262830
Остались вопросы?

Звоните по телефону: +7 499 490-47-01

Пишите на электронную почту: mail@zelgorod.ru

Смотрите наши услуги

Поиск объектов недвижимости