Московская область, г. Солнечногорск, ул. Баранова, дом 21/24 — информация о доме, фото, характеристики и планировки квартир

Характеристики

  • Серия П -101
  • Номер дома 21/24
  • Год постройки 1986
  • Тип кухонной плиты газовая
  • Мусороудаление Мусоропровод на межэтажной лестничной площадке
  • Количество секций (подъездов): 5
  • Лифты Один пассажирский грузоподъемностью 400 кг
  • Количество комнат в квартирах 1, 2, 3
  • Количество этажей 9
  • Тип дома Панельный
  • Высота жилых помещений 2.52
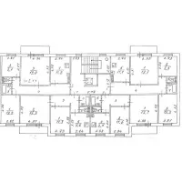
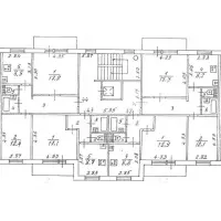
Информация по серии: П -101

Планировка квартир в домах серии П -101

Другие дома

Другие дома в этом районе
Остались вопросы?

Звоните по телефону: +7 499 490-47-01

Пишите на электронную почту: mail@zelgorod.ru

Смотрите наши услуги

Поиск объектов недвижимости